Edificio Multifamiliar - Malecon Rivera Norte 1460
HYC INVESTMENTS, presenta Proyecto Punta Rocas, un edificio multifamiliar con un área de terreno de 313.50 m2 y un área construida de 1017.55 m2 aproximadamente, ubicado frente al mar en el distrito de Punta Negra.
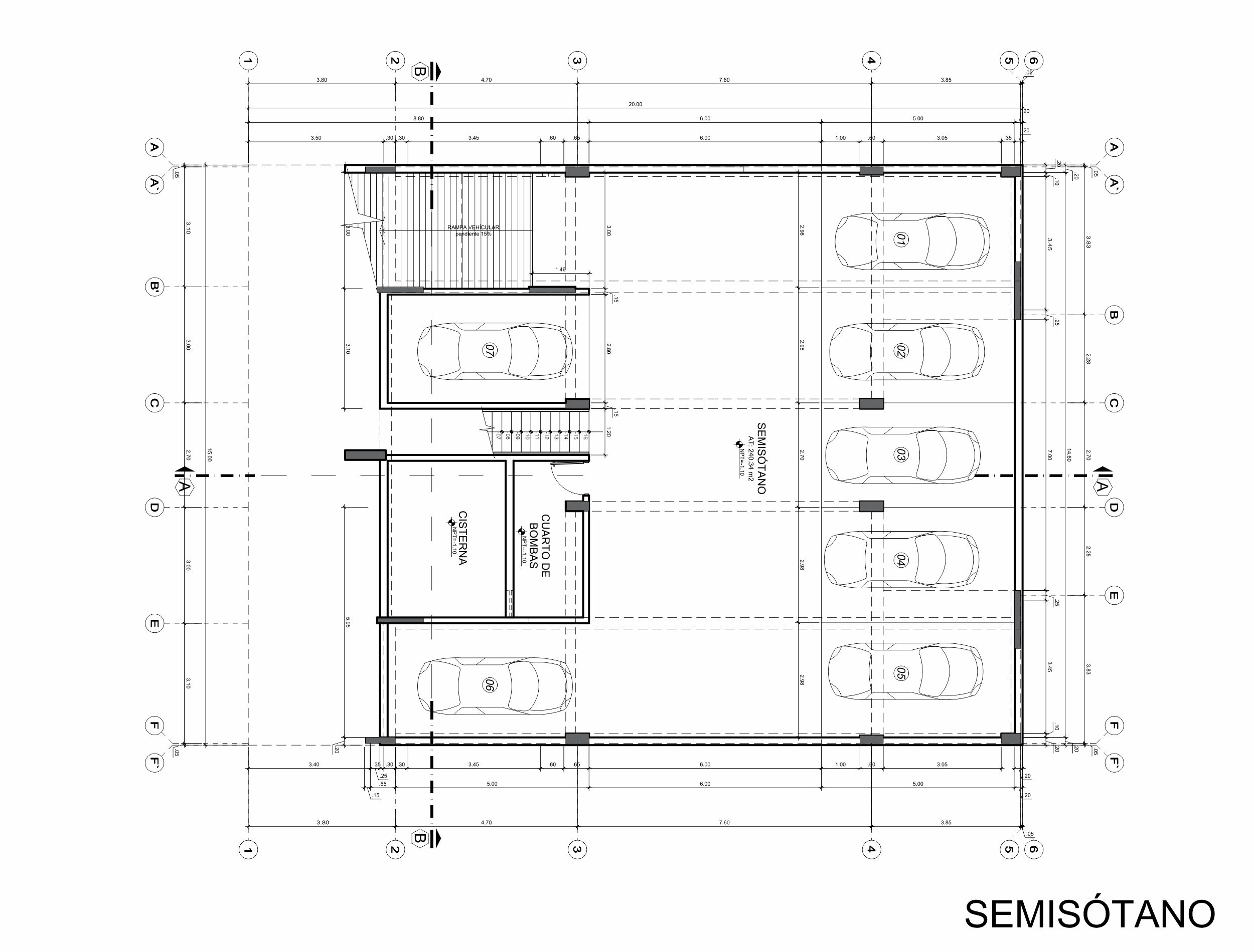
En el terreno en mención, se ha proyectado un edificio con semisótano en el cual se distribuyen 7 estacionamientos y 4 pisos de departamentos.
El Proyecto, posee amplios departamentos de 3 dormitorios, todos los departamento con vista al mar, acabados de primera calidad en una de las zonas más privilegiadas del distrito de Punta Rocas.
El Proyecto posee 02 tipos de departamentos, tipo FLAT. Con áreas desde 106 m2 y tipo DUPLEX de 204 m2. Dormitorio principal con baño incorporado y closets amplios en todas las habitaciones. Cocina amoblada, lavandería. Una cochera por departamento.
El Proyecto destaca por la sobriedad de su diseño, una línea moderna y materiales expuestos que combinan perfectamente, en los interiores predominan acabados que han sido elegidos responsablemente, considerando un adecuado balance entre calidad y buen gusto.
Considerar el detalle de la siguiente distribución:
- 01 Departamento FLAT de 114.76 mts2 en el primer piso.
- 01 Departamento FLAT de 124.20 mts2 en el primer piso.
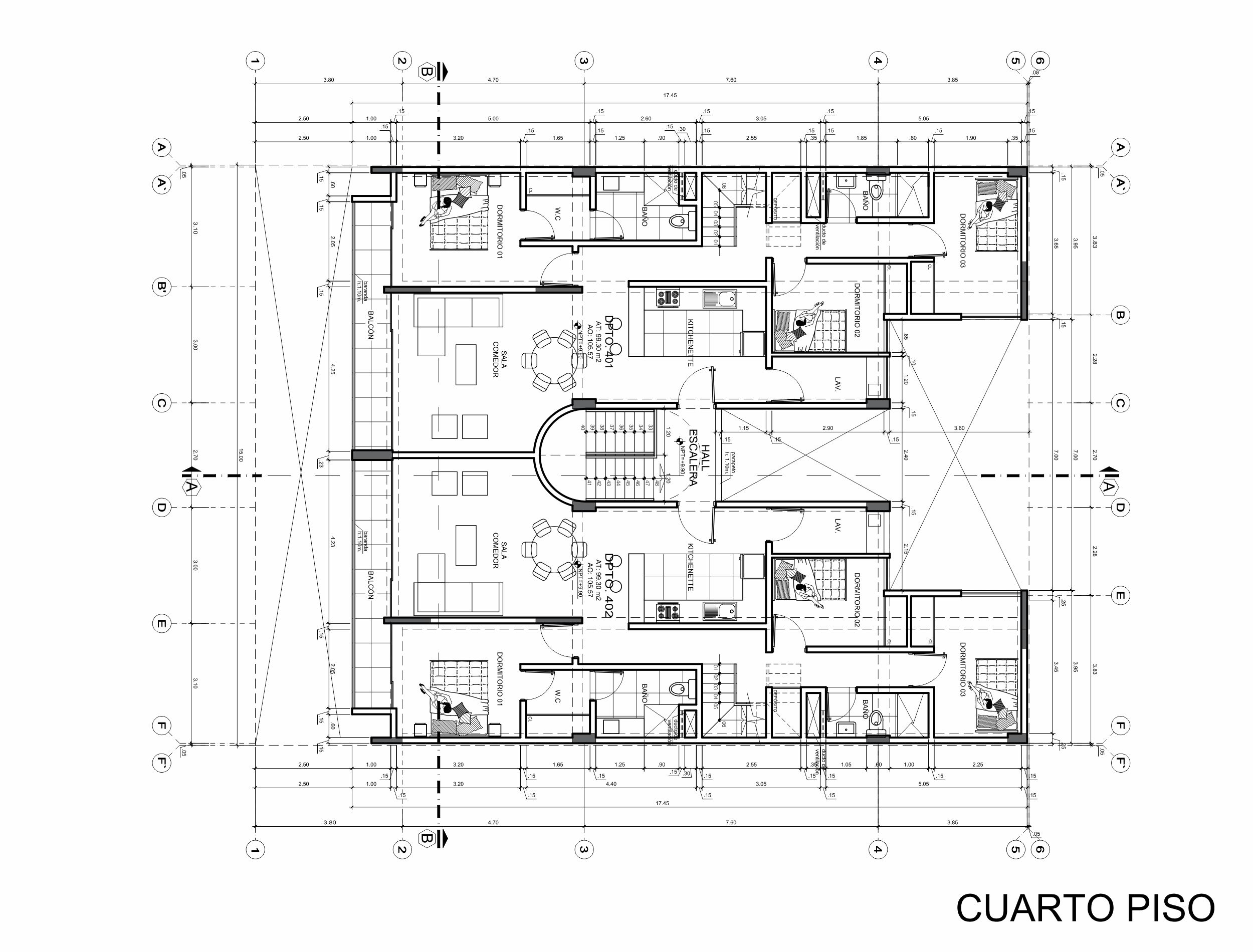
- 04 Departamento FLAT de 105.57 mts2 del segundo al cuarto piso.
- 02 Departamentos DUPLEX de 204.88 mts2 en el cuarto piso.
Los acabados principales se dan en pisos, vidrios, cocina, puertas y pinturas etc.
Departamento Flat 101
- 3 Dormitorios
- Sala comedor
- Sala de estar
- 3 Baños
- Cocina y lavandería
- Terraza con piscina
SALA - COMEDOR:
- Piso con enchape de porcelanato acabado rústico mate.
- Contra zócalos de porcelanato igual o similar al piso de 7 cm de altura.

Dirección: Malecon Rivera Norte 1460
Teléfono: (01) 228 3174
Celular: 949 140 225 / 947 118 802
Email: rose.barreto@hycinvestments.com
Mándanos tus consultas y solicitudes.
Envíanos un email para poder resolver tus dudas. Si deseas un contacto instantáneo llamanos a los siguientes números.